Приходите
СПб, ул. Фучика 8
Мы открыты
Пн-Пт: 9.00 -18.00

Cкачать брошюру llamada p-160tt

LLAMADA P-160TT 
БУРОВАЯ УСТАНОВКА CFA: 
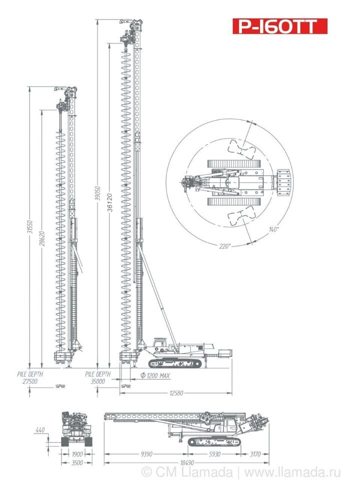
⌀1.000 / 35 m * ⌀1.200 / 33 M

Высокая производительность при малом весе - вот, как об этой буровой установки отзываются во Франции!

Буровая установка Llamada P-160tt предназначена для возведения буронабивных свай методом CFA с помощью Непрерывного Полого Шнека или уплотнения грунта по технологии FDP глубиной до 35м и диаметром от Ø400мм до Ø1.000мм или до 33м и диаметром от Ø400мм до Ø1.200мм.  Дополнительно можно расширить диаметр бурения до 1.500 мм, установив другую модель вращателя и сократив глубину бурения.

Для данной модели, доступна вариация в исполнении TCSP с дополнительным вращателем обсадной трубы на мачте и частично погружаемой обсадной трубой, для возведения стены в грунте буросекущими сваями. Узнать подробнее про TCSP? 

Также она может быть переоборудована для работы с пневмоударником по технологии DTH, гидромолотом или Jet-Grouting. 

Описание буровой установки

Буровая установка CFA Llamada p-160tt оборудована лебёдкой Automatic CROWD winch для равномерного поднятия и опускания вращателя. Создаёт дополнительное давление как вверх, так и вниз. Задавлювающая лебёдка работает всё время непрерывно, пока машина бурит, выравнивая усилие подачи шнека в разрабатываемую сваю и ускоряет процесс возведения свай в сложных грунтах.

Буровая машина CFA LLAMADA P-160 имеет гидравлическую телескопическую мачту и телескопический противовес, благодаря чему быстро стартует и достигает оптимальных глубин бурения без применения удлинителей шнека.

Задайте вопрос в Viber, мы на связи

Перевозка буровой установки llamada p-160tt


Перевозка буровой установки llamada p-160tt
Перевозка буровой установки

Длина: 18.490 мм 
Ширина: 3.500 мм
Высота: 3.740 мм
Транспортный вес с противовесом: 85тонн

Перевозка буровой установки llamada p-160


CFA без удлинителя шнека

Максимальный диаметр: 1.000 / 1.200 мм
Максимальная глубина: 35 м / 33 м
Внутренний диаметр бетоновода: 125 мм

ВЕС и давление на грунт

Рабочий вес экипированной установки: 85.000 кг
Удельное давление на грунт при работе: 0,91 кг/кв.см. 

телескопическая мачта
Ход телескопической мачты: 7.500 мм
Габаритная высота в верхнем положении: 39.050 мм
Высота до низа вращателя в верхнем положении: 36.6120 мм
регулируемый наклон мачты

Горизонтальный наклон: +/- 2°
Наклон вперёд:
Наклон назад: 15°

Гусеничное шасси llamada

Гидравлически раздвижная база: 3.500 - 5.050 мм.
Длина / ширина гусениц: 5.930 / 800 мм.
Рабочая зона вокруг базы: 262º

бурение вокруг себя 262°

Установка бурит вокруг себя на 262° без перемещения шасси. И это ещё не всё, что позволяет уникальная база и идеальная развесовка.

Есть вопрос? Мы вам перезвоним!

Задайте вопрос, прямо в Telegram 

Энерговооруженность буровой установки cfa

мощность LLAMADA P-160TT

Указаны реальные рабочие характеристики буровой установки, а не номинальные или прогнозируемые!

дизельный Двигатель

Возможна комплектация разными двигателями с разными экологическими классами:

• Volvo TAD 1671 - 450 кВт. (612 л.с.) TIER 4
• Caterpillar С18 - 571 кВт. (765 л.с.) TIER 3

передачи вращателя CFA

На каждой передаче свой диапазон оборотов с гарантированным (реальным) моментом:

1п - 33.900 кг. в диапазоне 0-7,8 об./мин
2п - 28.500 кг. в диапазоне 0-9,3 об./мин
3п - 23.100 кг. в диапазоне 0-11,5 об./мин
4п - 17.700 кг. в диапазоне 0-15 об./мин
5п - 12.300 кг. в диапазоне 0-21,5 об./мин

Гидравлическая система

1. Открытый контур (вращатель)
• Производительность: 420 л/м. при 2.000 об/м.
• Рабочее давление: 350 бар
• Макс. давление: 420 бар
2. Замкнутой контур (поворотный стол)
• Производительность: 270 л/мин. 
• Рабочее давление: 350 бар.
3. Рециркуляционный насос 
• Производительность: 90 л/мин.

Гидровращатель CFA

• Тип: Llamada P-160 роторный вращатель с внутренним бетоноводом Ø125 мм.
• 4 двигателя с двойным гидроприводом. 
• Номинальная мощность: 261 кНм (версия STD)
• Номинальная мощность: 333 кНм (версия HD)
• Скорость: 0 - 21,5 об/мин.
• Выбор скорости и крутящего момента: автоматический или ручной.
• Концевые выключатели.

Задайте вопрос в Viber, мы на связи

Хотите полноценную презентацию?

КОМПЛЕКТАЦИЯ буровой установки CFA LLAMADA P-105tt

быстрый старт и мобильность
Противовес буровой установки llamada 160

телескопический противовес

Снижает общий вес установки, сокращает время сборки и повышает устойчивость:

• Общий вес: 16.500 кг.
• Съёмный вес: 14.300 кг.
• Телескопическое выдвижение: 1.500 мм.

Лебёдки буровой установки LLAMADA p-160

Лебёдки основные

1. Главная лебедка
• Тяга: запасовка х5 = 125 тонн
• Скорость: 30 м/мин. (30/5 = 6 м/мин.)
2. Вспомогательная лебёдка 
• Тяга на первом слое: 7,9 тонн.
• Максимальная скорость: 39 м/мин

Задавливающая лебёдка буровой установки LLAMADA p-160

Задавливающая лебёдка

Лебёдка Automatic CROWD winch

• Тяга:
запасовка х2 = 30 тонн.
• Работает постоянно, выравнивая давление на грунт при бурении.

Смазка буровой установки llamada p-160

Система смазки

Дополнительные опции на выбор:

•  Автоматическая смазка по всем точкам
•  Автоматическая смазка только по отдельным точкам

Гидравлический вращатель LLAMADA p-160

гидравлический вращатель

• Закрытый независимый контур обеспечивает равномерное усилие при бурении, вне зависимости от функционирования других систем установки.

Направляющая шнека CFA

направляющая шнека CFA

Центрирующий направляющий зажим:
• Может быть как механический для определённого диаметра, так и гидравлический для разных диаметров.

Очиститель шнека CFA LLAMADA p-160

Очиститель шнека CFA

Гибкий или жесткий очиститель шнека:
• Для любых грунтов
• Не уменьшает рабочую длину шнека
• Позволяет работать шнеками с любым межвитковыми расстояниями.

Управление буровой установкой llamada p-160

Просторная  кабина

• Удобное эргономичное, регулируемое сидение.
• Великолепная обзорность на 360º.
• Управление: гидравлическая система с регулировкой по нагрузке, управление сервоприводом с возможностью пропорционального управления.
• Освещение внутри и снаружи.
• Яркие кнопки аварийной остановки внутри и снаружи.
• Кабина FOPS, защита в соответствии с une-EN Стандарт ИСО 3449.
• Машина согласно стандарту CE по EN 791.

наши контакты

Мы открыты для общения. Задаёте любой вопрос письменно или устно.