Приходите
СПб, ул. Фучика 8
Мы открыты
Пн-Пт: 9.00 -18.00

Cкачать брошюру llamada p-105tt

LLAMADA P-105TT 
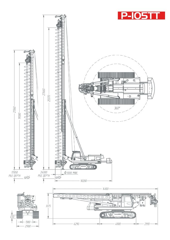
БУРОВАЯ УСТАНОВКА CFA: ⌀1.000 / 24.000 mm

Может делать 70% всех CFA свай в России (по диаметру и глубине). Лидер по времени сборки!

     Буровая установка Llamada P-105tt предназначена для возведения буронабивных свай методом CFA с помощью Непрерывного Полого Шнека или уплотнения грунта по технологии FDP глубиной до 24м и диаметром от Ø400мм до Ø1.000ммТакже она может быть переоборудована для работы с пневмоударником по технологии DTH, гидромолотом или Jet-Grouting. 

Описание буровой установки

Буровая установка CFA Llamada p-105tt оборудована лебёдкой Automatic CROWD winch для равномерного поднятия и опускания вращателя. Создаёт дополнительное давление как вверх, так и вниз. Задавлювающая лебёдка работает всё время непрерывно, пока машина бурит, выравнивая усилие подачи шнека в разрабатываемую сваю и ускоряет процесс возведения свай в сложных грунтах.

Буровая машина CFA LLAMADA P-105 имеет гидравлическую телескопическую мачту и телескопический противовес, благодаря чему быстро стартует и достигает оптимальных глубин бурения без применения удлинителей шнека.

Задайте вопрос в Viber, мы на связи

Перевозка буровой установки llamada p-105tt


Перевозка буровой установки llamada p-105tt
Перевозка буровой установки

Длина: 14.100 мм 
Ширина: 2.980 мм
Высота: 3.375 мм
Транспортный вес с противовесом: 46 тонн

Перевозка буровой установки llamada p-105


CFA без удлинителя шнека

Максимальный диаметр: 1.000 мм
Максимальная глубина: 24 м
Внутренний диаметр бетоновода: 125 мм

ВЕС и давление на грунт

Рабочий вес экипированной установки: 46.000 кг
Удельное давление на грунт при работе: 0,80 кг/кв.см. 

телескопическая мачта
Ход телескопической мачты: 6.150 мм
Габаритная высота в верхнем положении: 27.660 мм
Высота до низа вращателя в верхнем положении: 25.370 мм
регулируемый наклон мачты

Горизонтальный наклон: +/- 3°
Наклон вперёд:
Наклон назад: 15°

Гусеничное шасси llamada

Гидравлически раздвижная база: 2.980 - 4.320 мм.
Длина / ширина гусениц: 4.900 / 800 мм.
Рабочая зона вокруг базы: 360º

бурение вокруг себя 360°

Установка легко бурит вокруг себя на 360° без перемещения шасси, образуя идеальный круг. И это ещё не всё, что позволяет уникальная база и идеальная развесовка.

Есть вопрос? Мы вам перезвоним!

Задайте вопрос, прямо в Telegram 

Энерговооруженность буровой установки cfa

мощность LLAMADA P-105TT

Указаны реальные рабочие характеристики буровой установки, а не номинальные или прогнозируемые!

дизельный Двигатель

Возможна комплектация разными двигателями с разными экологическими классами:

• Caterpillar С7.1 - 205 кВт. (278 л.с.) TIER 4
• Int. Caterpillar С7.1 - 205 кВт. (278 л.с.) TIER 3

передачи вращателя CFA

На каждой передаче свой диапазон оборотов с гарантированным (реальным) моментом:

1п - 13.000 кг. в диапазоне 0-11 об./мин
2п - 9.700 кг. в диапазоне 0-15 об./мин
3п - 6.500 кг. в диапазоне 0-23 об./мин

Гидравлическая система

1. Открытый контур (вращатель)
• Производительность: 270 л/м. при 2.000 об/м.
• Рабочее давление: 350 бар
• Макс. давление: 420 бар
2. Замкнутой контур (база)
• Производительность: 270 л/мин. 
• Рабочее давление: 350 бар.
3. Рециркуляционный насос 
• Производительность: 40 л/мин.

Гидровращатель CFA

• Тип: Llamada P-105 роторный вращатель с внутренним бетоноводом Ø125 мм.
• 4 двигателя с двойным гидроприводом. 
• Номинальная мощность: 130 кНм
• Скорость: 0 - 23 об/мин.
• Выбор скорости и крутящего момента: автоматический или ручной.
• Концевые выключатели.

Задайте вопрос в Viber, мы на связи

Хотите полноценную презентацию?

КОМПЛЕКТАЦИЯ буровой установки CFA LLAMADA P-105tt

быстрый старт и мобильность
Противовес буровой установки llamada 105

телескопический противовес

Снижает общий вес установки, сокращает время сборки и повышает устойчивость:

• Вес - 7.000 кг.

Лебёдки буровой установки LLAMADA p-105

Лебёдки основные

1. Главная лебедка
• Тяга: запасовка х4 = 47,6 тонн
• Скорость: 32 м/мин. (32/4 = 8 м/мин.)
2. Вспомогательная лебёдка 
• Тяга на первом слое: 4,9 тонн.
• Максимальная скорость: 63 м/мин

Задавливающая лебёдка буровой установки LLAMADA p-105

Задавливающая лебёдка

Лебёдка Automatic CROWD winch

• Тяга:
запасовка х2 = 6 тонн.
• Работает постоянно, выравнивая давление на грунт при бурении.

Смазка буровой установки llamada p-105

Система смазки

Дополнительные опции на выбор:

•  Автоматическая смазка по всем точкам
•  Автоматическая смазка только по отдельным точкам

Гидравлический вращатель LLAMADA p-105

гидравлический вращатель

• Закрытый независимый контур обеспечивает равномерное усилие при бурении, вне зависимости от функционирования других систем установки.

Направляющая шнека CFA

направляющая шнека CFA

Центрирующий направляющий зажим:
• Может быть как механический для определённого диаметра, так и гидравлический для разных диаметров.

Очиститель шнека CFA LLAMADA p-105

Очиститель шнека CFA

Гибкий или жесткий очиститель шнека:
• Для любых грунтов
• Не уменьшает рабочую длину шнека
• Позволяет работать шнеками с любым межвитковыми расстояниями.

Управление буровой установкой llamada p-105

Просторная  кабина

• Удобное эргономичное, регулируемое сидение.
• Великолепная обзорность на 360º.
• Управление: гидравлическая система с регулировкой по нагрузке, управление сервоприводом с возможностью пропорционального управления.
• Освещение внутри и снаружи.
• Яркие кнопки аварийной остановки внутри и снаружи.
• Кабина FOPS, защита в соответствии с une-EN Стандарт ИСО 3449.
• Машина согласно стандарту CE по EN 791.

наши контакты

Мы открыты для общения. Задаёте любой вопрос письменно или устно.